Beschreibung
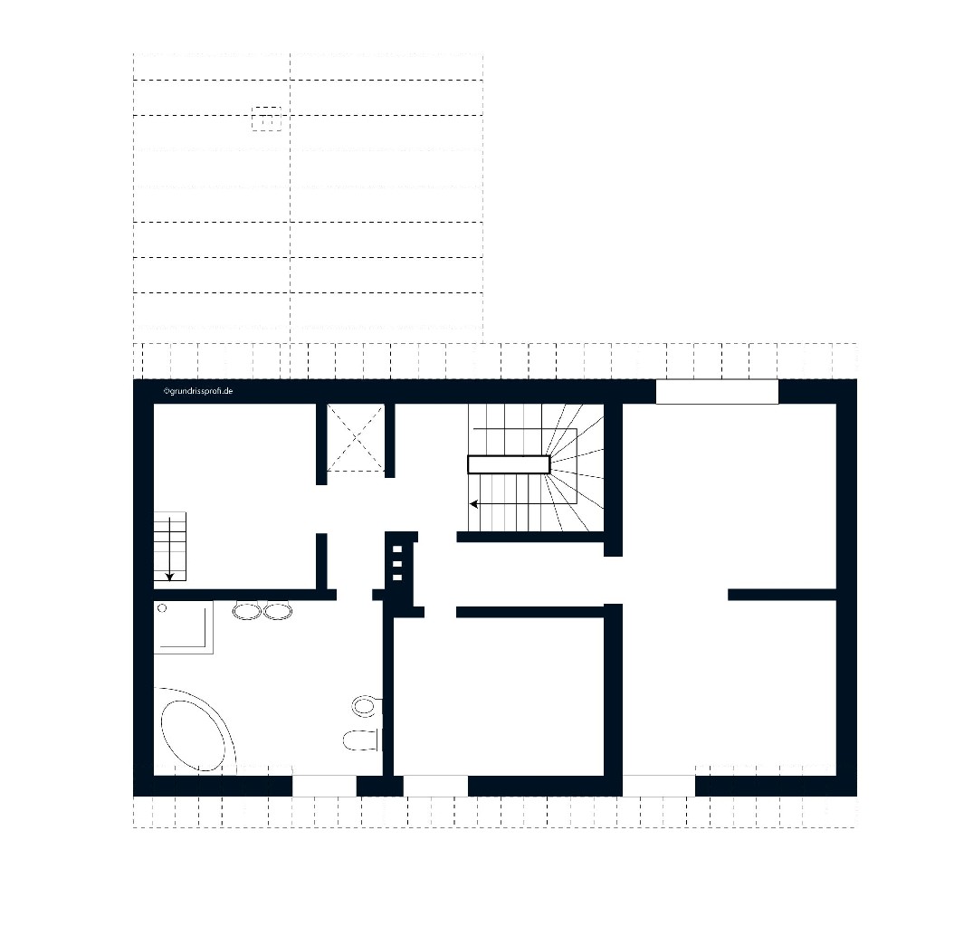
Dieses vielseitige Wohn- und Geschäftshaus vereint Wohnen, Arbeiten und Lagern auf ideale Weise. Perfekt für Handwerksbetriebe, die kurze Wege und effiziente Abläufe schätzen. Auf rund 402 m² Gesamtfläche bietet das Objekt eine hochwertig ausgestattete Wohneinheit, eine gepflegte Bürofläche sowie großzügige Lager- und Abstellmöglichkeiten in den Nebengebäuden. Das etwa 591 m² große Grundstück umfasst einen geschützten Innenhof mit überdachter Terrasse, mehrere Pkw-Stellplätze und einen weitläufigen Garten. Der Zugang erfolgt über ein rund 3,20 m hohes Hoftor, das auch für größere Transportfahrzeuge geeignet ist. Der Innenhof eignet sich nicht nur als Stellfläche, sondern bietet auch zusätzliche Nutzungsmöglichkeiten, beispielsweise als Werkstatt, Lager oder überdachter Arbeitsbereich. Im Hochparterre befindet sich eine abgeschlossene Büroeinheit mit drei Räumen, Empfangstheke, Gäste-WC und Küche. Ideal für Kundenempfang, Verwaltung oder Planung. Die angrenzenden Lagerflächen im hinteren Bereich und in den Nebengebäuden ermöglichen eine klare funktionale Trennung zwischen Büro und Werkstatt. Der private Wohnbereich ist über einen separaten Eingang zugänglich und erstreckt sich über das Ober- und Dachgeschoss. Zur hochwertigen Ausstattung gehören eine moderne Einbauküche mit Markengeräten, ein großzügiger Wohn- und Essbereich, ein Tageslichtbad mit Regendusche und Eckbadewanne sowie mehrere Schlaf- und Arbeitszimmer. Ein ausgebauter Spitzboden und ein begehbarer Kleiderschrank ergänzen das Angebot. Die Immobilie ist voll unterkellert, verfügt über eine Ölzentralheizung sowie doppelt verglaste Kunststofffenster. Ein attraktives Gesamtpaket für Unternehmer, die Wohnen und Arbeiten intelligent kombinieren möchten. Darüber hinaus bietet das Objekt Ausbau- und Erweiterungspotenzial für individuelle Ideen.Ausstattung
– Freistehendes Wohn- und Geschäftshaus mit Wohneinheit im OG und DG, Büro- und Lagerfläche für eine Betriebsstätte im EG – Vinylboden in Holzoptik im OG und DG – Hochwertige offene Einbauküche mit Kücheninsel und Essbereich – Innenhof mit bis zu 3 Außenstellplätzen und 2 Garagen – Vor dem Haus weitere 4 Außenstellplätze – Ölzentralheizung mit Öltank – Modernisierte Bürofläche auf ca. 60 m² mit Teeküche – Separates Mitarbeiter-WC – Lagerflächen vom Hof aus zu erreichen – Überdachte Terrasse im Innenhof – Unterkellert – Gäste-WC – Ausgebautes DachgeschossSonstiges
Der Energieausweis liegt zur Besichtigung vor. Energieausweis: Verbrauchsausweis gültig von: 16.10.2023 Endenergieverbrauch Wärme: 294 kWh/(m²a) Wesentliche Energieträger Heizung: Befeuerung Oel Energieeffizienzklasse: H (hohe Fördermöglichkeit bei Erneuerung) Baujahr: 1920Sie sehen gerade einen Platzhalterinhalt von Google Maps. Um auf den eigentlichen Inhalt zuzugreifen, klicken Sie auf die Schaltfläche unten. Bitte beachten Sie, dass dabei Daten an Drittanbieter weitergegeben werden.
Mehr InformationenUnsere Erfahrung und die Zusammenarbeit mit unseren Partnern zahlt sich aus.
Wir unterstützen Sie persönlich und zuverlässig bei der Suche nach Ihrer Traumimmobilie.
Für Ihre Immobilien erzielen wir einen guten Preis – bei uns sind Sie gut beraten.
Sie sehen gerade einen Platzhalterinhalt von Vimeo. Um auf den eigentlichen Inhalt zuzugreifen, klicken Sie auf die Schaltfläche unten. Bitte beachten Sie, dass dabei Daten an Drittanbieter weitergegeben werden.
Mehr InformationenSie sehen gerade einen Platzhalterinhalt von YouTube. Um auf den eigentlichen Inhalt zuzugreifen, klicken Sie auf die Schaltfläche unten. Bitte beachten Sie, dass dabei Daten an Drittanbieter weitergegeben werden.
Mehr InformationenSie müssen den Inhalt von reCAPTCHA laden, um das Formular abzuschicken. Bitte beachten Sie, dass dabei Daten mit Drittanbietern ausgetauscht werden.
Mehr InformationenSie sehen gerade einen Platzhalterinhalt von Google Maps. Um auf den eigentlichen Inhalt zuzugreifen, klicken Sie auf die Schaltfläche unten. Bitte beachten Sie, dass dabei Daten an Drittanbieter weitergegeben werden.
Mehr InformationenSie sehen gerade einen Platzhalterinhalt von Mapbox. Um auf den eigentlichen Inhalt zuzugreifen, klicken Sie auf die Schaltfläche unten. Bitte beachten Sie, dass dabei Daten an Drittanbieter weitergegeben werden.
Mehr InformationenSie sehen gerade einen Platzhalterinhalt von OpenStreetMap. Um auf den eigentlichen Inhalt zuzugreifen, klicken Sie auf die Schaltfläche unten. Bitte beachten Sie, dass dabei Daten an Drittanbieter weitergegeben werden.
Mehr Informationen