Beschreibung
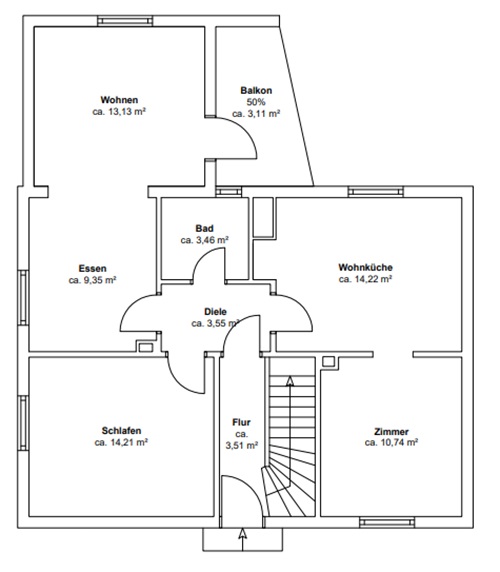
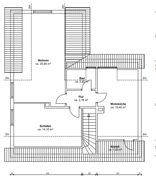
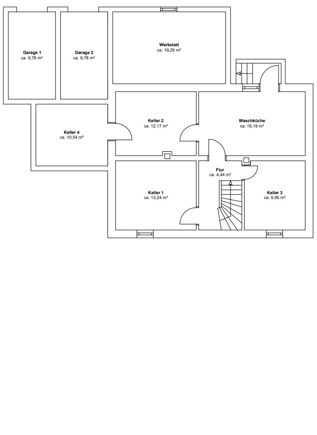
Willkommen in Ihrem neuen Zuhause einem charmanten Einfamilienhaus, das 1954 erbaut wurde und in einer ruhigen, idyllischen Nachbarschaft liegt. Mit einer großzügigen Wohnfläche von 136 m² bietet dieses geräumige Haus ausreichend Platz für die ganze Familie. Das Haus befindet sich auf einem weitläufigen Grundstück von 841 m², das Ihnen viel Platz für Gartenarbeit und Outdoor-Aktivitäten bietet. Der Innenbereich des Hauses überzeugt durch eine durchdachte Raumaufteilung und viel Tageslicht. Die großzügigen Zimmer ermöglichen individuelle Gestaltungsmöglichkeiten und schaffen eine einladende Atmosphäre. Der Keller bietet zusätzlichen Stauraum und kann nach Belieben als Hobbyraum oder Werkstatt genutzt werden. Das Haus wartet darauf, von Ihnen mit Leben erfüllt zu werden. Die beiden Garagen bieten Platz für Ihre Fahrzeuge. Des Weiteren steht Ihnen im Garten ein Raum für Fahrräder und Gartengeräte zur Verfügung. Nutzen Sie die Chance, dieses einzigartige Haus zu Ihrem neuen Zuhause zu machen und gestalten Sie es ganz nach Ihren Vorstellungen. Hier wohnen Sie in einer harmonischen Umgebung, die sowohl Ruhe als auch Nähe zu allen wichtigen Annehmlichkeiten des Lebens bietet. Lassen Sie Ihrer Kreativität freien Lauf und genießen Sie das Leben in diesem bezaubernden Zuhause!Lage
Fröndenberg ist eine Stadt im Bundesland Nordrhein-Westfalen, Deutschland. Geografisch liegt Fröndenberg im Märkischen Kreis und grenzt an die Städte Unna, Menden und Iserlohn. Die Verkehrsanbindung ist gut, da Fröndenberg über die Autobahn A1 sowie über verschiedene Bundesstraßen erreichbar ist. Der Bahnhof Fröndenberg bietet zudem Anschluss an das regionale Schienennetz, was Pendlern die Anreise in nahegelegene Städte wie Dortmund oder Hagen erleichtert. Fröndenberg hat eine Bevölkerung von etwa 30.000 Einwohnern und bietet eine Vielzahl von Einrichtungen und Dienstleistungen, darunter Schulen, Einkaufsmöglichkeiten und Freizeitaktivitäten. Insgesamt zeichnet sich Fröndenberg durch eine hohe Lebensqualität aus, die durch die Kombination aus naturnaher Lage, guter Infrastruktur und einem breiten Angebot an Freizeitmöglichkeiten unterstützt wird.Sie sehen gerade einen Platzhalterinhalt von Google Maps. Um auf den eigentlichen Inhalt zuzugreifen, klicken Sie auf die Schaltfläche unten. Bitte beachten Sie, dass dabei Daten an Drittanbieter weitergegeben werden.
Mehr InformationenUnsere Erfahrung und die Zusammenarbeit mit unseren Partnern zahlt sich aus.
Wir unterstützen Sie persönlich und zuverlässig bei der Suche nach Ihrer Traumimmobilie.
Für Ihre Immobilien erzielen wir einen guten Preis – bei uns sind Sie gut beraten.
Sie sehen gerade einen Platzhalterinhalt von Vimeo. Um auf den eigentlichen Inhalt zuzugreifen, klicken Sie auf die Schaltfläche unten. Bitte beachten Sie, dass dabei Daten an Drittanbieter weitergegeben werden.
Mehr InformationenSie sehen gerade einen Platzhalterinhalt von YouTube. Um auf den eigentlichen Inhalt zuzugreifen, klicken Sie auf die Schaltfläche unten. Bitte beachten Sie, dass dabei Daten an Drittanbieter weitergegeben werden.
Mehr InformationenSie müssen den Inhalt von reCAPTCHA laden, um das Formular abzuschicken. Bitte beachten Sie, dass dabei Daten mit Drittanbietern ausgetauscht werden.
Mehr InformationenSie sehen gerade einen Platzhalterinhalt von Google Maps. Um auf den eigentlichen Inhalt zuzugreifen, klicken Sie auf die Schaltfläche unten. Bitte beachten Sie, dass dabei Daten an Drittanbieter weitergegeben werden.
Mehr InformationenSie sehen gerade einen Platzhalterinhalt von Mapbox. Um auf den eigentlichen Inhalt zuzugreifen, klicken Sie auf die Schaltfläche unten. Bitte beachten Sie, dass dabei Daten an Drittanbieter weitergegeben werden.
Mehr InformationenSie sehen gerade einen Platzhalterinhalt von OpenStreetMap. Um auf den eigentlichen Inhalt zuzugreifen, klicken Sie auf die Schaltfläche unten. Bitte beachten Sie, dass dabei Daten an Drittanbieter weitergegeben werden.
Mehr Informationen