Beschreibung
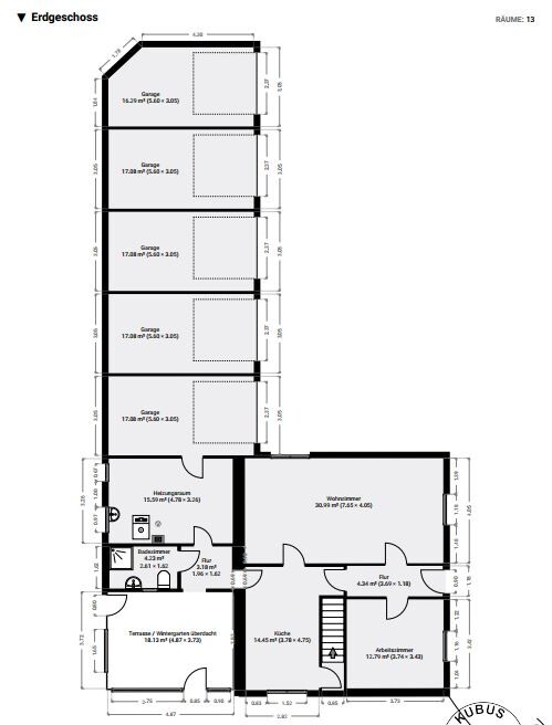
In attraktiver Lage von Weeze befindet sich dieses im Jahr 1900 erbaute Wohnhaus, das mit einer Wohnfläche von rund 130 m² und einer zusätzlichen Nutzfläche von ca. 30 m² überzeugt. Das großzügige Grundstück umfasst 666 m² und bietet vielfältige Nutzungsmöglichkeiten ob als Rückzugsort im Grünen, für Hobbys oder als Platz für die ganze Familie. Wohnen mit Geschichte und Charakter Das Haus vereint den Charme eines Altbaus mit einer praktischen Raumaufteilung. Auf rund 130 m² Wohnfläche finden sich einladende Wohn- und Schlafräume, die sich flexibel an individuelle Bedürfnisse anpassen lassen. Hier ist genügend Raum, um eigene Gestaltungsideen einzubringen und ein Zuhause nach den persönlichen Vorstellungen zu schaffen. Die Nutzfläche von ca. 30 m² eröffnet zusätzliche Möglichkeiten, sei es für Hobbyräume, Abstellflächen oder als Erweiterung für das tägliche Leben. Besonderes Highlight: 5 Garagen Ein echtes Plus stellt die großzügige Garagenanlage dar. Insgesamt fünf Garagen stehen zur Verfügung, ideal für Kfz-Liebhaber, Handwerker oder als zusätzliche Lagermöglichkeit. Außenbereich mit viel Platz Das 666 m² große Grundstück ist bestens geeignet für Gartenliebhaber, Familien mit Kindern oder Haustierhalter. Ob gemütliche Sitzecken, ein Nutzgarten oder Platz zum Spielen, hier lassen sich viele Wünsche verwirklichen. Fazit Diese Immobilie bietet eine seltene Kombination aus historischem Wohnhaus, großzügigem Grundstück und außergewöhnlich viel Garagenfläche. Mit etwas handwerklichem Geschick und Liebe zum Detail lässt sich hier ein echtes Schmuckstück schaffen, das Raum für Wohnen, Arbeiten und Hobbys bietet. Haben wir Ihr Interesse geweckt? Melden Sie sich noch heute für einen Besichtigungstermin.Ausstattung
Tondachpfannen 5 Garagen, 3 vermietet Kleine Hütte für Gartengeräte Wintergarten mit Rampe ins Haus 2003 neu Haustüre dreifach gesichert Glasfaser liegt an der Straße Fenster: Erdgeschoss: Kunststoff, Zweifachverglasung aus 2003 Dachgeschoss: Holz, teilweise Einfachverglasung Gas-Heizung mit Brennwerttechnik aus 2011 Stromleitungen 1992 neu 2017 Bad im Erdgeschoss neu 1992 Bad DachgeschossLage
Diese Immobilie befindet sich in einer besonders attraktiven Wohnlage im Herzen von Weeze, einer charmanten Gemeinde im Kreis Kleve am Niederrhein. Die Umgebung ist geprägt von einer ruhigen, familienfreundlichen Atmosphäre mit kurzen Wegen zu allen wichtigen Einrichtungen des täglichen Lebens. Die Lage überzeugt durch ihre Nähe zum Ortskern, das Zentrum von Weeze ist nur wenige Gehminuten entfernt. Hier finden sich zahlreiche Einkaufsmöglichkeiten, Cafés, Restaurants und Dienstleister, die den Alltag angenehm gestalten. Trotz der zentralen Lage genießt man hier eine ruhige Wohnatmosphäre mit wenig Durchgangsverkehr. Der Bahnhof Weeze liegt nur rund 200 Meter entfernt und bietet eine direkte Anbindung an die Regionalbahnstrecken Richtung Düsseldorf und Kleve. Pendler profitieren von der schnellen Erreichbarkeit größerer Städte, während auch der Flughafen Weeze in wenigen Minuten mit dem Auto erreichbar ist, ideal für Vielflieger oder internationale Gäste. In unmittelbarer Nähe befinden sich ein Supermarkt, eine Bäckerei sowie eine Apotheke, alles bequem zu Fuß erreichbar. Auch Ärzte, Banken und weitere Einrichtungen sind in der Umgebung angesiedelt und sorgen für eine ausgezeichnete Versorgung. Kindergärten und Schulen wie die Petrus-Canisius-Schule sind nur wenige hundert Meter entfernt und machen die Lage besonders attraktiv für Familien mit Kindern. Spielplätze und Grünflächen in der Umgebung bieten zusätzlichen Raum für Freizeit und Erholung. Die Nähe zum Schlosspark Wissen und zu den weitläufigen Feldern rund um Weeze lädt zu Spaziergängen, Radtouren und Outdoor-Aktivitäten ein. Die Region bietet eine hohe Lebensqualität mit viel Natur, ohne auf urbane Annehmlichkeiten verzichten zu müssen. Diese Lage vereint zentrale Erreichbarkeit, ruhiges Wohnen und eine hervorragende Infrastruktur, ideal für Familien, Berufstätige oder Ruhesuchende. Ein Wohnort mit hoher Lebensqualität und vielseitigem Potenzial.Sie sehen gerade einen Platzhalterinhalt von Google Maps. Um auf den eigentlichen Inhalt zuzugreifen, klicken Sie auf die Schaltfläche unten. Bitte beachten Sie, dass dabei Daten an Drittanbieter weitergegeben werden.
Mehr Informationen
Unsere Erfahrung und die Zusammenarbeit mit unseren Partnern zahlt sich aus.
Wir unterstützen Sie persönlich und zuverlässig bei der Suche nach Ihrer Traumimmobilie.
Für Ihre Immobilien erzielen wir einen guten Preis – bei uns sind Sie gut beraten.
Sie sehen gerade einen Platzhalterinhalt von Vimeo. Um auf den eigentlichen Inhalt zuzugreifen, klicken Sie auf die Schaltfläche unten. Bitte beachten Sie, dass dabei Daten an Drittanbieter weitergegeben werden.
Mehr InformationenSie sehen gerade einen Platzhalterinhalt von YouTube. Um auf den eigentlichen Inhalt zuzugreifen, klicken Sie auf die Schaltfläche unten. Bitte beachten Sie, dass dabei Daten an Drittanbieter weitergegeben werden.
Mehr InformationenSie müssen den Inhalt von reCAPTCHA laden, um das Formular abzuschicken. Bitte beachten Sie, dass dabei Daten mit Drittanbietern ausgetauscht werden.
Mehr InformationenSie sehen gerade einen Platzhalterinhalt von Google Maps. Um auf den eigentlichen Inhalt zuzugreifen, klicken Sie auf die Schaltfläche unten. Bitte beachten Sie, dass dabei Daten an Drittanbieter weitergegeben werden.
Mehr InformationenSie sehen gerade einen Platzhalterinhalt von Mapbox. Um auf den eigentlichen Inhalt zuzugreifen, klicken Sie auf die Schaltfläche unten. Bitte beachten Sie, dass dabei Daten an Drittanbieter weitergegeben werden.
Mehr InformationenSie sehen gerade einen Platzhalterinhalt von OpenStreetMap. Um auf den eigentlichen Inhalt zuzugreifen, klicken Sie auf die Schaltfläche unten. Bitte beachten Sie, dass dabei Daten an Drittanbieter weitergegeben werden.
Mehr Informationen