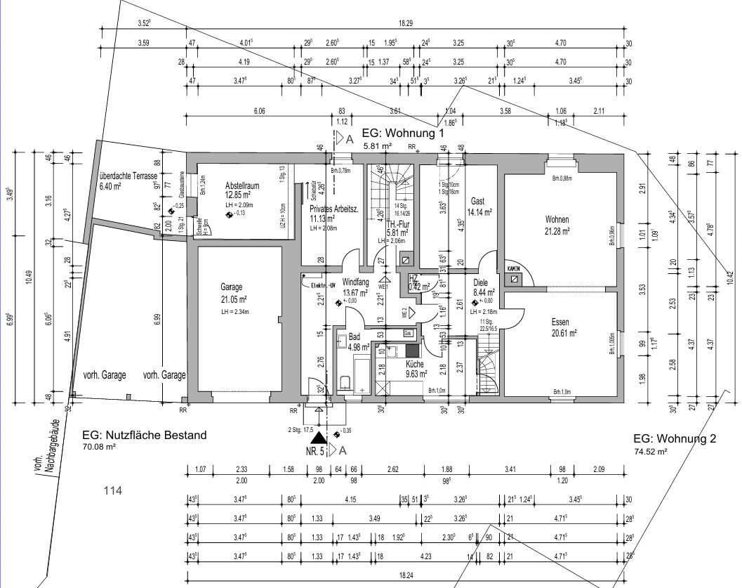
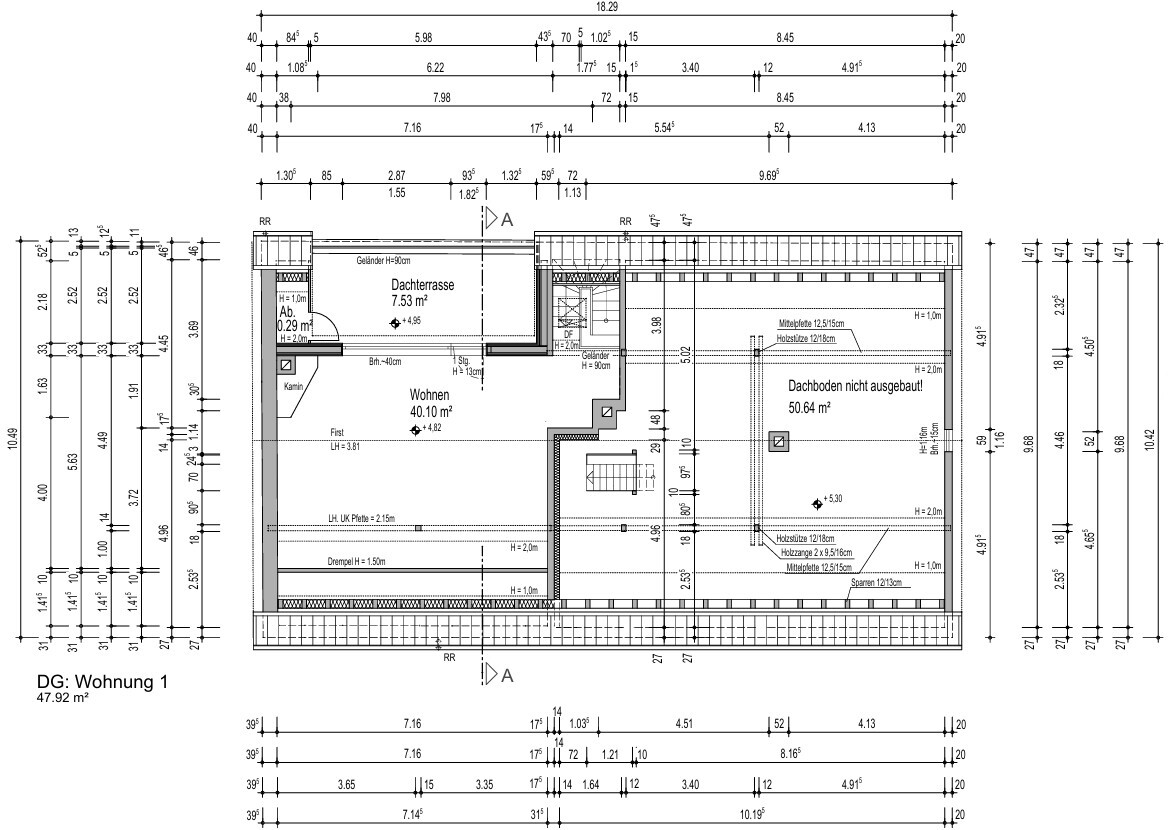
Beschreibung
Auf einem ca. 965 m² großen Grundstück steht, zurückversetzt von einer ruhigen Seitenstraße, dieses zum Verkauf stehende Zweifamilienhaus. Die Immobilie bietet vielseitige Nutzungsmöglichkeiten und bietet insgesamt ca. 357 m² Wohn-/ und Nutzfläche zzgl. Teilkeller. Über einen zentralen Hauszugang mit vorgelagertem Vorflur sind zwei voneinander getrennte Wohneinheiten erreichbar. Zudem befinden sich im Erdgeschoss noch zwei hintereinanderliegende, separate Räume sowie ein Tageslichtbad mit Badewanne. Von einem dieser separaten Räume gelangen Sie auf eine überdachte Terrasse sowie in den rückseitigen Garten. Die erste Wohneinheit verfügt über ca. 129 m² Wohnfläche, verteilt auf vier Zimmer. Der Zugang liegt im Erdgeschoss, während sich der überwiegende Teil der Wohnräume über das Ober-/ und Dachgeschoss erstreckt. Im Obergeschoss befindet sich die Küche mit einem vorgelagerten Essbereich, der offen zur Diele gestaltet ist. Darüber hinaus stehen hier zwei Schlafzimmer sowie ein Tageslichtbad zur Verfügung. Im Dachgeschoss befindet sich das ca. 40 m² große Wohnzimmer mit Kaminofen und Zugang zu einer Dachloggia mit Süd-West-Ausrichtung sowie einem seitlichen Abstellraum. Die Wohnung ist seit 2022 vermietet. Die zweite Wohnung umfasst ca. 147 m² Wohnfläche und erstreckt sich auf der rechten Hausseite etwa hälftig über das Erd-/ und das Obergeschoss. Im Erdgeschoss bietet die Wohnung eine Kochküche, ein Schlafzimmer mit Zugang in den Garten sowie einen modern offen gestalteten Wohn-/ und Essbereich mit gemauertem Eckkamin und Holzparkettfußboden. Über eine steile Treppe gelangt man in das Obergeschoss. Hier befinden sich drei Schlafzimmer (ca. 20 m², ca. 14 m² und ca. 13 m²) sowie ein Tageslichtbad mit Dusche. Über das Obergeschoss ist zudem der weitere, derzeit nicht ausgebaute ca. 51 m2 große Dachboden erreichbar. Auf dem Grundstück stehen insgesamt 6 Garagen zur Verfügung. Zwei Garagen sind direkt an das Wohnhaus angebaut eine im Haus integriert, eine weitere Doppelgarage ohne Zwischenwand befindet sich separat auf dem Grundstück. Zusätzlich befindet sich auf dem Grundstück eine Halle, die als Kalthalle errichtet wurde und über ca. 120 m² Nutzfläche verfügt. Die Halle und einige der Garagen sind vermietet, sodass zusätzliche Mieteinnahmen generiert werden. Diese Immobilie bietet aufgrund ihrer Größe und Ausstattung mit Halle und Garagen vielseitige Nutzungsmöglichkeiten.Ausstattung
Außenfassade: Vorderseite, Rückseite und rechte Giebelseite Fassadenelemente, linke Giebelseite verputzt Decken: Holzbalkendecke Fenster: Verbau unterschiedlicher Fenstertypen, zum Teil doppelverglaste Kunststofffenster bzw. doppelverglastes Dachflächenfenster aus Holz, zum Teil manuell bedienbare Rollläden Haustür: Metall mit Glaseinsatz Türzargen/-blätter: Holz Treppen: Wohnung 1: Innentreppe Harfentreppe aus Metall mit Holzstufen/ Wohnung 2: Treppe mit Teppichbelag/ Zum nicht ausgebauten Dachboden: Metalltreppe mit Holzstufen/ Zum Teilkeller: Metalltreppe Badezimmer: Wohnung 1: Tageslichtbad mit Badewanne/ Wohnung 2: Tageslichtbad mit Dusche/ Weiteres Tageslichtbad über Hausflur zugänglich mit Badewanne und Anschlussmöglichkeit für Waschmaschine Heizung: Getrennt für beide Wohnungen, Gasetagenheizungen, Firma Vaillant, Baujahr 1996/2015 Warmwasser: Wohnung 1: Zentral über Heizungsanlage/ Wohnung 2: Dezentral über Durchlauferhitzer Wasseruhren: Vorhanden Elektrik: Wohnung 1: Teilmodernisiert mit Kippsicherungen und FI- Schutzschalter, ansonsten modernisierungsbedürftig TV- Anschluss: Satellit Keller: Ca. 30 m² großer Teilkeller, über Küche der Wohnung 2 zugänglich Terrasse/ Balkon/Loggia: Wohnung 1: Dachloggia mit Süd- Westausrichtung/ Wohnung 2: Überdachte Terrasse mit Gartenzugang, ebenfalls Süd- Westausrichtung PKW- Stellplatz: 6 Garagen, 2 x Doppelgarage ohne Zwischenwand, eine davon mit elektrisch bedienbarem Schwingtor sowie 2 x Einzelgaragen Grundstück: 965 m² großes Kaufgrundstück Nebenkosten: Wohngebäudeversicherung ca.1.000 Euro/ Jahr, Grundsteuer 732 Euro/Jahr (2025), Gesamt- Grundbesitzabgaben 1.751 Euro/ Jahr Sonstiges: Ca. 120 m² große Halle, mit doppelflügeligem Stahltor, errichtet als Kalthalle mit einfachverglasten Fenstern und Glasbausteinen, Stromanschluss vorhanden Mieteinnahmen: 1.130 Euro/ Monat Hinweis: Die Käufer sollten über den Kaufpreis und die Kauferwerbsnebenkosten hinaus über ein Budget für Modernisierungs-/ Renovierungsmaßnahmen verfügen.Lage
Die Immobilie befindet sich in ruhiger und gewachsener Wohnlage im beliebten Iserlohner Stadtteil Letmathe. Die Einwohner profitieren von einer sehr guten Infrastruktur mit kurzen Wegen zu allen Einrichtungen des täglichen Bedarfs. Einkaufsmöglichkeiten wie ein PENNY-Markt, weitere Supermärkte, Bäckereien, Restaurants sowie Ärzte, Apotheken und Banken befinden sich im nahen Umfeld und sind teilweise bequem fußläufig erreichbar. Auch Familien finden hier sehr gute Voraussetzungen: Mehrere Kindertagesstätten, Grundschulen sowie weiterführende Schulen, darunter das Gymnasium Letmathe und die Realschule Letmathe sowie Sportvereine, befinden sich im Stadtteil oder in kurzer Entfernung. Für Freizeit und Erholung bietet der nahegelegene Volksgarten Letmathe mit großzügigen Grünflächen, Spazierwegen und Spielplätzen attraktive Möglichkeiten. Zusätzlich laden die Wege entlang der Lenne zu Spaziergängen, Radtouren oder sportlichen Aktivitäten ein. Die Verkehrsanbindung ist ebenfalls sehr gut. Über die nur wenige Minuten entfernte Autobahn A46 erreichen Sie schnell Hagen, das Ruhrgebiet sowie das Sauerland. Der Bahnhof Iserlohn-Letmathe bietet zudem regelmäßige Bahnverbindungen in Richtung Iserlohn, Hagen und Dortmund und sorgt gemeinsam mit mehreren Buslinien für eine gute Anbindung an den öffentlichen Nah-/ und Fernverkehr.Sie sehen gerade einen Platzhalterinhalt von Google Maps. Um auf den eigentlichen Inhalt zuzugreifen, klicken Sie auf die Schaltfläche unten. Bitte beachten Sie, dass dabei Daten an Drittanbieter weitergegeben werden.
Mehr InformationenUnsere Erfahrung und die Zusammenarbeit mit unseren Partnern zahlt sich aus.
Wir unterstützen Sie persönlich und zuverlässig bei der Suche nach Ihrer Traumimmobilie.
Für Ihre Immobilien erzielen wir einen guten Preis – bei uns sind Sie gut beraten.
Sie sehen gerade einen Platzhalterinhalt von Vimeo. Um auf den eigentlichen Inhalt zuzugreifen, klicken Sie auf die Schaltfläche unten. Bitte beachten Sie, dass dabei Daten an Drittanbieter weitergegeben werden.
Mehr InformationenSie sehen gerade einen Platzhalterinhalt von YouTube. Um auf den eigentlichen Inhalt zuzugreifen, klicken Sie auf die Schaltfläche unten. Bitte beachten Sie, dass dabei Daten an Drittanbieter weitergegeben werden.
Mehr InformationenSie müssen den Inhalt von reCAPTCHA laden, um das Formular abzuschicken. Bitte beachten Sie, dass dabei Daten mit Drittanbietern ausgetauscht werden.
Mehr InformationenSie sehen gerade einen Platzhalterinhalt von Google Maps. Um auf den eigentlichen Inhalt zuzugreifen, klicken Sie auf die Schaltfläche unten. Bitte beachten Sie, dass dabei Daten an Drittanbieter weitergegeben werden.
Mehr InformationenSie sehen gerade einen Platzhalterinhalt von Mapbox. Um auf den eigentlichen Inhalt zuzugreifen, klicken Sie auf die Schaltfläche unten. Bitte beachten Sie, dass dabei Daten an Drittanbieter weitergegeben werden.
Mehr InformationenSie sehen gerade einen Platzhalterinhalt von OpenStreetMap. Um auf den eigentlichen Inhalt zuzugreifen, klicken Sie auf die Schaltfläche unten. Bitte beachten Sie, dass dabei Daten an Drittanbieter weitergegeben werden.
Mehr Informationen