Beschreibung
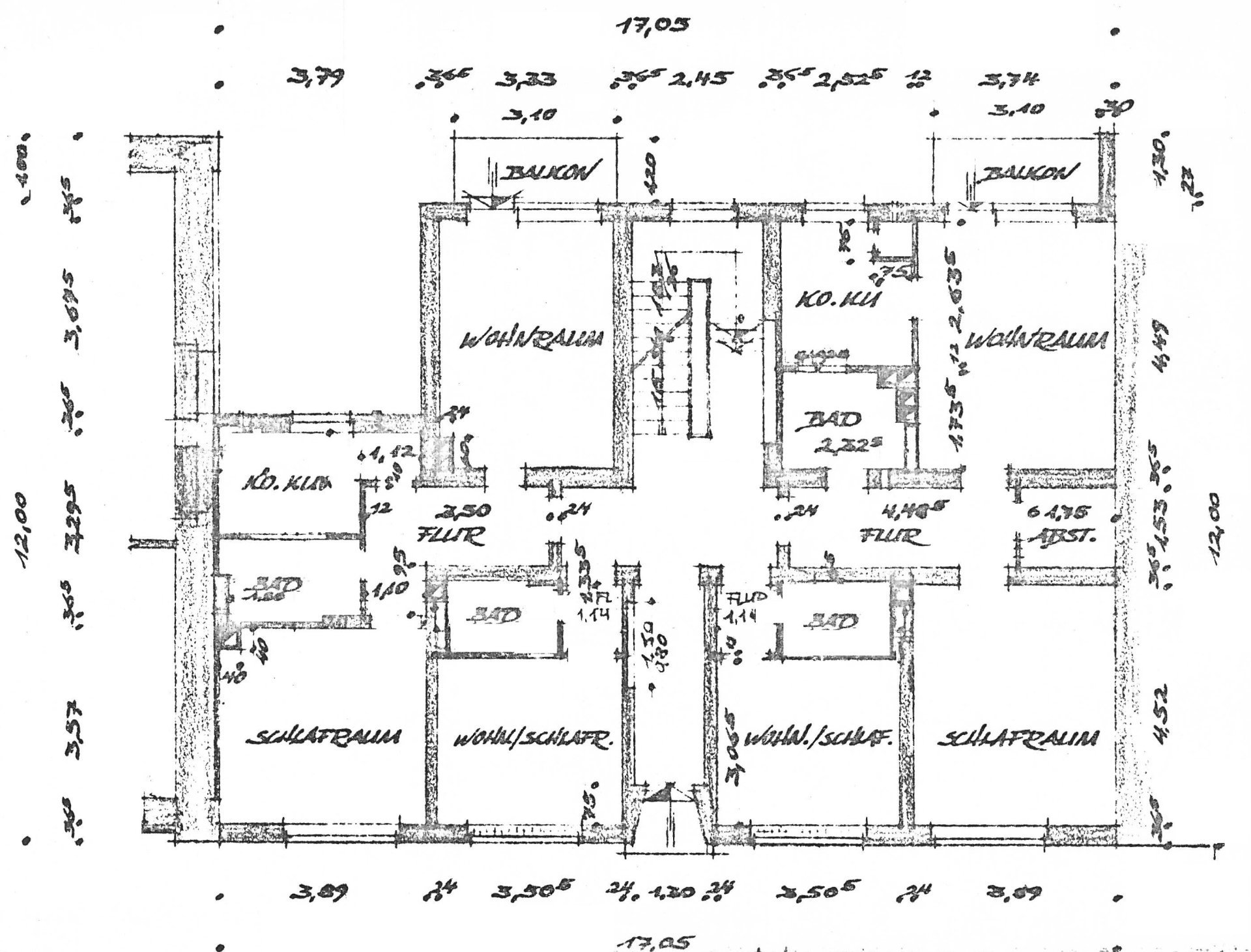
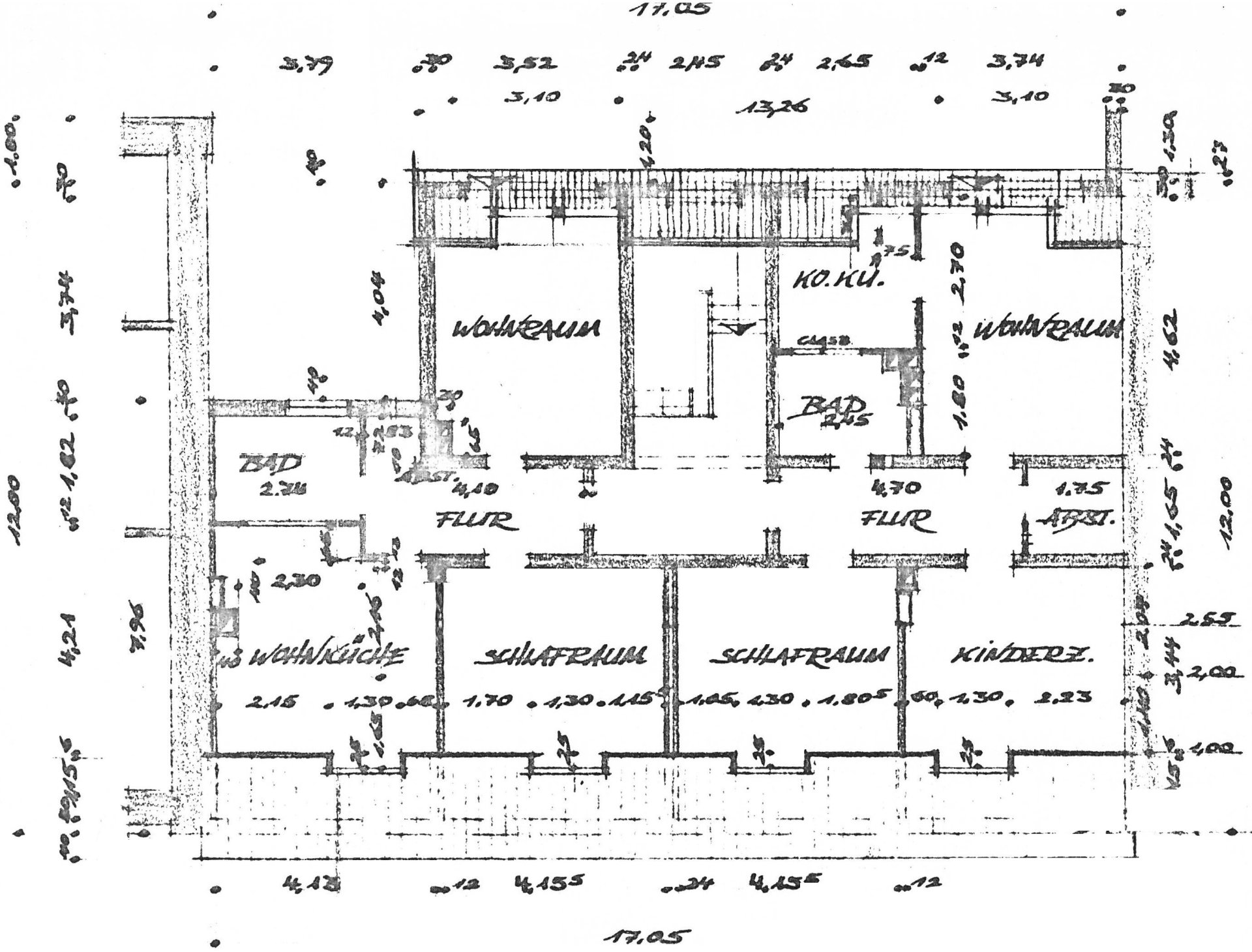
Bei dem angebotenen Objekt handelt es sich um ein Mehrfamilienhaus mit Entwicklungspotenzial in einer ruhigen Seitenstraße mit Blick auf die Ennepe. Das Gebäude bietet Wohnfläche von ca. 680 m², verteilt auf drei Vollgeschosse sowie das Dachgeschoss, mit bis zu 14 Wohneinheiten. Die Wohnungsstruktur stellt einen sehr ausgewogenen und marktfähigen Mix dar: Neben kompakten 1-Zimmer-Apartments stehen klassisch geschnittene 2- bis 3-Zimmer-Wohnungen zur Verfügung. Diese Vielfalt ermöglicht es, gezielt auf die unterschiedlichen Bedürfnisse potenzieller Mieter ? von Singles über Paare bis hin zu kleinen Haushalten ? einzugehen und trägt zu einer nachhaltigen Vermietbarkeit bei. Besonders hervorzuheben sind die 2- bis 3-Zimmer-Wohnungen im Erdgeschoss bis zum 3. Obergeschoss, die jeweils über Balkone mit Südausrichtung verfügen. Von hier aus bietet sich ein freier Blick auf den angrenzenden Fluss Ennepe. Das Gebäude ist voll unterkellert. Im Kellergeschoss befinden sich die separaten Mieterkeller sowie die Möglichkeit, einen gemeinschaftlichen Wasch- und Trockenraum einzurichten. Aktuell sind 9 Wohneinheiten vermietet. Es bestehen keine Mietrückstände, jedoch ist die derzeitige Mieterstruktur als entwicklungsbedürftig einzustufen. Im Zuge einer Neuausrichtung sind teilweise neue Mietverträge aufzusetzen sowie eine Anpassung der aktuell erzielten Mieten an das Marktniveau erforderlich. Die derzeit leerstehenden Wohnungen müssen renoviert werden; zudem ist in mehreren Einheiten die Installation neuer Bäder vorgesehen. Weiterer Investitionsbedarf besteht insbesondere im Bereich der Elektroinstallation, die einer Modernisierung bedarf. Dem gegenüber stehen jedoch bereits erfolgte wertrelevante Maßnahmen, wie die Erneuerung der Fenster im Jahr 2012, sowie die vorhandenen Balkone und die attraktive, ruhige Lage in einer Seitenstraße. Für Kapitalanleger mit Eigenkapital, Investitionsbereitschaft und aktivem Managementansatz bietet sich hier die Möglichkeit, eine langfristig gut vermietbare Kapitalanlage mit Entwicklungspotenzial zu erwerben und durch gezielte Maßnahmen nachhaltig aufzuwerten.Ausstattung
Bauweise: Massiv, geschlossene Bauweise Geschosse: 3-geschossig mit Vollkeller und ausgebautem Dachgeschoss Fundamente: Streifenfundamente aus Beton Außenwände: Kellergeschoss ca. 35,5 cm Mauerwerk, Wohngeschosse ca. 30 cm Mauerwerk Innenwände: Gemauert Decken: Stahlbetondecken Dach: Satteldach, ca. 30° Dachneigung, Eindeckung aus Tondachziegel. Dachfläche im Bereich der Dachgeschosswohnungen nachträglich gedämmt Hauseingangstür: Holz Treppenhaus: Stahlbetontreppe mit Terrazzo-Belag und Holzgeländer Wohnungseingangstüren: Holz Wohnungsinnentüren: Holz, teils mit Lichtausschnitt Fenster: Isolierverglaste Kunststofffenster, Baujahr 2012, im Dachgeschoss doppelverglaste Fenster, Baujahr 1997 Balkon: 8 Wohnungen verfügen jeweils über einen ca. 4 m² großen Balkon mit Süd- Ausrichtung Heizung: Gasetagenheizungen, unterschiedliche Hersteller, Baujahre (ältestes Baujahr 1993, teilweise bereits zwischen 2003-2020 erneuert). Teilweise müssen in leerstehenden Wohnungen neue Heizungen eingebaut werden. Warmwasserversorgung: Über Heizungsanlage Badezimmer: Innenliegend mit Badewanne oder Dusche, teilweise müssen in den leerstehenden Wohnungen Bäder eingebaut Elektroinstallation: Erneuerungsbedürftig, Hauptverteilung im Hausflur sowie Unterverteilung in den Wohnungen Keller: Bodenbelag Zementestrich, Waschküche und Zugang zum rückseitigen Garten vorhanden Außenanlagen: Rückseitiger Gemeinschaftsgarten mit Südausrichtung und Blick auf die Ennepe PKW- Stellplätze: Hauptsächlich öffentlich vor dem Haus möglich. Eine Garage ist auf dem Grundstück möglich. Mieteinnahmen: 24.453 ? Ist- Miete, 5 Wohnungen stehen aktuell leer. Betriebskosten: 3.965 ?/ Jahr Grundbesitzabgaben, 1.539 ?/ Jahr Wohngebäudeversicherung zzgl. Strom, Wasser, Abwasser Investitionsbedarf: Erneuerung der Elektrik (überwiegend Hauptverteilung, tlw. Wohnungselektrik), tlw. Einbau oder Erneuerung von Bädern, Putzarbeiten an den Balkonunterseiten sowie Treppenhaus zzgl. Anstrich, Renovierungsarbeiten in den (leerstehenden) Wohnungen Wohnungsgrößen: EG: 2- Zimmerwohnung ca. 45 m² 2- Zimmerwohnung ca. 55 m² 1- Zimmer- Apartments ca. 16 m² 1.-3.OG 2- Zimmerwohnung ca. 48 m² 2- Zimmerwohnung ca. 58 m² 1- Zimmerapartments ca. 38 m² DG 2- Zimmerwohnung ca. 55 m² 3- Zimmerwohnung ca. 64 m²Lage
Hagen Haspe Die Immobilie liegt angrenzend an die Ennepe in einer ruhigen Nebenstraße. Die Immobilie befindet sich im Hagener Stadtteil Haspe, einer infrastrukturell sehr gut angebundenen Wohnlage. Der Stadtteil zeichnet sich durch eine hohe Alltagstauglichkeit aus und bietet kurze Wege zu allen Einrichtungen des täglichen Bedarfs. Sowohl die Verkehrsanbindung als auch die Nahversorgungen ist als sehr gut zu bewerten. Haspe verfügt über einen eigenen Stadtkern, der nur ca. 1 km entfernt liegt und alle Geschäfte des alltäglichen Bedarfs bietet. Die Verkehrsanbindung ist sowohl an den öffentlichen Nahverkehr an Bus und Bahn ideal. Die S-Bahnhof Hagen-Heubing bietet sowohl eine Anbindung an den Hagener Hauptbahnhof als auch nach Wuppertal, Schwelm oder bis nach Düsseldorf. Die Autobahn A1, Auffahrt Volmarstein ist ca. 4,3 km entfernt. Familien profitieren von einer sehr guten Bildungs- und Betreuungsinfrastruktur. Mehrere Kindertagesstätten, Grundschulen sowie weiterführende Schulen, darunter die Gesamtschule Haspe, sind gut erreichbar.Sie sehen gerade einen Platzhalterinhalt von Google Maps. Um auf den eigentlichen Inhalt zuzugreifen, klicken Sie auf die Schaltfläche unten. Bitte beachten Sie, dass dabei Daten an Drittanbieter weitergegeben werden.
Mehr InformationenUnsere Erfahrung und die Zusammenarbeit mit unseren Partnern zahlt sich aus.
Wir unterstützen Sie persönlich und zuverlässig bei der Suche nach Ihrer Traumimmobilie.
Für Ihre Immobilien erzielen wir einen guten Preis – bei uns sind Sie gut beraten.
Sie sehen gerade einen Platzhalterinhalt von Vimeo. Um auf den eigentlichen Inhalt zuzugreifen, klicken Sie auf die Schaltfläche unten. Bitte beachten Sie, dass dabei Daten an Drittanbieter weitergegeben werden.
Mehr InformationenSie sehen gerade einen Platzhalterinhalt von YouTube. Um auf den eigentlichen Inhalt zuzugreifen, klicken Sie auf die Schaltfläche unten. Bitte beachten Sie, dass dabei Daten an Drittanbieter weitergegeben werden.
Mehr InformationenSie müssen den Inhalt von reCAPTCHA laden, um das Formular abzuschicken. Bitte beachten Sie, dass dabei Daten mit Drittanbietern ausgetauscht werden.
Mehr InformationenSie sehen gerade einen Platzhalterinhalt von Google Maps. Um auf den eigentlichen Inhalt zuzugreifen, klicken Sie auf die Schaltfläche unten. Bitte beachten Sie, dass dabei Daten an Drittanbieter weitergegeben werden.
Mehr InformationenSie sehen gerade einen Platzhalterinhalt von Mapbox. Um auf den eigentlichen Inhalt zuzugreifen, klicken Sie auf die Schaltfläche unten. Bitte beachten Sie, dass dabei Daten an Drittanbieter weitergegeben werden.
Mehr InformationenSie sehen gerade einen Platzhalterinhalt von OpenStreetMap. Um auf den eigentlichen Inhalt zuzugreifen, klicken Sie auf die Schaltfläche unten. Bitte beachten Sie, dass dabei Daten an Drittanbieter weitergegeben werden.
Mehr Informationen