Beschreibung
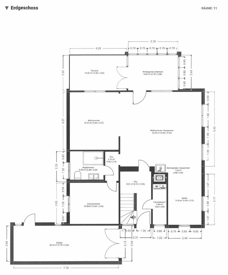
Ihre Familie braucht Platz? Wir bieten Ihnen hier ein Haus mit fünf Zimmern, einem zusätzlichen Raum mit wohnlich ausgebauter Nutzfläche, zwei Bädern und ein uneinsehbares, sonniges Grundstück. Dieses gepflegte Einfamilienhaus in begehrter Lage von Sonsbeck überzeugt durch das flexible Wohnkonzept und die einladende Ausstattung. Im Erdgeschoss erwartet Sie das Herzstück des Hauses: ein mit ca. 50 m² großer, üppiger Wohn- / Essbereich mit halboffener Küche, Zugang zu Garten und Terrasse, sowie einem Kaminofen. Vervollständigt wird das Erdgeschoss durch ein erst 2018 komplett erneuertes Tageslichtbad mit ebenerdiger Dusche, einem weiteren individuell nutzbaren Raum und einem Abstellraum, in dem sich die Heizung und Stellflächen für Waschmaschine und Trockner befinden. In der oberen Etage erwarten Sie drei Schlafräume, sowie ein zusätzlicher Raum, der Ihnen eine wohnlich ausgebaute Nutzfläche bietet, sowie ein weiteres Tageslichtbad mit Eckbadewanne und Dusche.Ausstattung
– freistehend – Fertighaus Kampa, Holzbau – Garage gemauert – Einbauküche mit Markengeräten (2012) – Kunststofffenster (größtenteils 2021) – elektrische Rollläden, Smart-Home-steuerbar – Gaszentralheizung Vaillant (2006), H2-Ready-Check bestätigt – Kaminofen Hark – Pool – Gartenhaus – Gartenpumpe für die Gartenbewässerung – Hauswasserwerk mit zwei Zapfstellen – Gästebad erneuert (2018) – Glasfaser im Haus – Balkonkraftwerk – schöne Bepflanzung (Ausnahme: 3 kleine Bäumchen werden entfernt)Lage
Das Objekt befindet sich in attraktiver Wohnlage in der charmanten Gemeinde Sonsbeck am idyllischen Niederrhein. Die Umgebung ist geprägt von einer gewachsenen Nachbarschaft mit überwiegend Ein- und Zweifamilienhäusern, gepflegten Gärten sowie einer angenehmen, ruhigen Wohnatmosphäre. Der Ortskern ist in wenigen Minuten erreichbar und bietet eine gute Auswahl an Einkaufsmöglichkeiten für den täglichen Bedarf, Bäckereien, Cafés, Restaurants sowie Banken und Apotheken. Kindergärten, eine Grundschule und weiterführende Schulen in den umliegenden Orten sorgen für eine familienfreundliche Infrastruktur. Die naturnahe Lage ist ein besonderes Highlight: Weitläufige Felder, Wiesen und Waldgebiete ? unter anderem rund um den Balberger Wald ? laden zu Spaziergängen, Fahrradtouren und vielfältigen Freizeitaktivitäten ein. Sonsbeck wird nicht ohne Grund als ?grüne Perle am Niederrhein? bezeichnet. Trotz der ruhigen Umgebung ist eine gute Verkehrsanbindung gewährleistet. Über die nahegelegenen Bundesstraßen sowie die Autobahnanbindungen Richtung Ruhrgebiet und Niederlande sind Städte wie Xanten, Wesel und Duisburg bequem erreichbar. Auch der öffentliche Nahverkehr bietet regelmäßige Verbindungen in die umliegenden Städte. Insgesamt überzeugt die Lage durch die gelungene Kombination aus naturnahem Wohnen, familienfreundlicher Infrastruktur und guter Erreichbarkeit ? ideal für alle, die ruhiges Wohnen im Grünen mit einer soliden Anbindung verbinden möchten.Sie sehen gerade einen Platzhalterinhalt von Google Maps. Um auf den eigentlichen Inhalt zuzugreifen, klicken Sie auf die Schaltfläche unten. Bitte beachten Sie, dass dabei Daten an Drittanbieter weitergegeben werden.
Mehr Informationen
Unsere Erfahrung und die Zusammenarbeit mit unseren Partnern zahlt sich aus.
Wir unterstützen Sie persönlich und zuverlässig bei der Suche nach Ihrer Traumimmobilie.
Für Ihre Immobilien erzielen wir einen guten Preis – bei uns sind Sie gut beraten.
Sie sehen gerade einen Platzhalterinhalt von Vimeo. Um auf den eigentlichen Inhalt zuzugreifen, klicken Sie auf die Schaltfläche unten. Bitte beachten Sie, dass dabei Daten an Drittanbieter weitergegeben werden.
Mehr InformationenSie sehen gerade einen Platzhalterinhalt von YouTube. Um auf den eigentlichen Inhalt zuzugreifen, klicken Sie auf die Schaltfläche unten. Bitte beachten Sie, dass dabei Daten an Drittanbieter weitergegeben werden.
Mehr InformationenSie müssen den Inhalt von reCAPTCHA laden, um das Formular abzuschicken. Bitte beachten Sie, dass dabei Daten mit Drittanbietern ausgetauscht werden.
Mehr InformationenSie sehen gerade einen Platzhalterinhalt von Google Maps. Um auf den eigentlichen Inhalt zuzugreifen, klicken Sie auf die Schaltfläche unten. Bitte beachten Sie, dass dabei Daten an Drittanbieter weitergegeben werden.
Mehr InformationenSie sehen gerade einen Platzhalterinhalt von Mapbox. Um auf den eigentlichen Inhalt zuzugreifen, klicken Sie auf die Schaltfläche unten. Bitte beachten Sie, dass dabei Daten an Drittanbieter weitergegeben werden.
Mehr InformationenSie sehen gerade einen Platzhalterinhalt von OpenStreetMap. Um auf den eigentlichen Inhalt zuzugreifen, klicken Sie auf die Schaltfläche unten. Bitte beachten Sie, dass dabei Daten an Drittanbieter weitergegeben werden.
Mehr Informationen